Townaghbrack, “The Old School”
- Property Type: House For Sale
- Offer type: For Sale
- Town: Monasteraden
Features
- "The Old School"
- Broadband Available
- Elevated Aspect
- Eligible for grants subject to terms & conditions
- Mains water & elecrticity available
- Traditional stone wall construction
Details
TOWNAGHBRACK, “THE OLD SCHOOL”
Former Primary School Premises with Grounds c. 0.44 Acres
Excellent location with elevated aspect on the North Roscommon/Sligo border
c. 3kms from Monasteraden Village
c. 10.5 kms Knock International Airport & c. 40 kms Sligo
Eligible for the vacant property refurbishment grant STC
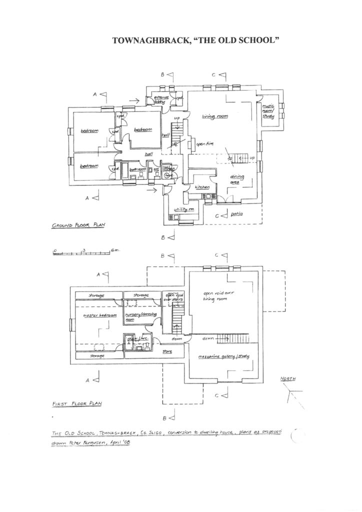
Accommodation:
- Original accommodation layout comprising of 2 large classrooms
- Conversion plans as proposed included
Outside:
- Enclosed school yard with additional grounds for septic tank/percolation area
Townaghbrack is a townland in the parish of Monasteraden, County Sligo.
It is known for the historical Townaghbrack National School, which was called the “College in the Bog” and operated from 1883 until 1967. The school closed when it was amalgamated with other local schools.
Features:
- Elevated aspect with views of the surrounding countryside
- Mains water, electric and broadband available
- Traditional stone wall construction
- Eligible for the vacant property refurbishment grant subject to terms & conditions
- Exciting renovation project
Price Guide €35,000
Viewing:
- Immediate viewing recommended & by prior appointment with the Sole Agents
Directions:
- From Ballaghaderreen on the Sligo Road, c 4.6 km at Edmondstown cross take the road straight for Monasteraden, in Monasteraden take the road straight to pass the Church and continue c. 2.4 kms to take the road left, proceed c. 0.5 kms to the property on the left.
- Nearest Eircode: F45 WP66
REF: TR604S

- ID: 16481
- Published: October 20, 2025
- Last Update: November 24, 2025
- Views: 164